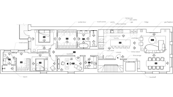
Nestled in the vibrant heart of New York, this exquisite 180-square-meter residence is a testament to the seamless blend of classic and contemporary design. This Broadway home marries sleek modern furnishings with timeless grace, offering an urban sanctuary that exudes comfort and elegance. Towering ceilings invite the city’s energy and grandeur inside, while each room is meticulously adorned, showcasing high-quality materials and exquisite decorative elements. Beyond its doors awaits the vibrant rhythm of cultural events, chic restaurants, and fashion boutiques, encapsulating the artistic heritage and stylish ambiance for which the area is renowned.
Recommended Reading: An Eclectic Cocktail Of Classical Decor And Modern Art
Related Posts:




























51 Modern Houses That Impress With Stunning Architecture, Pools & Landscaping
Mid-Century Modern Classic Chairs
51 Shipping Container Homes That Will Change How You Think About Home Design
Beige Serenity & Verdant Views: A Tapestry of Nature’s Palette in Brazil’s Embaúba House